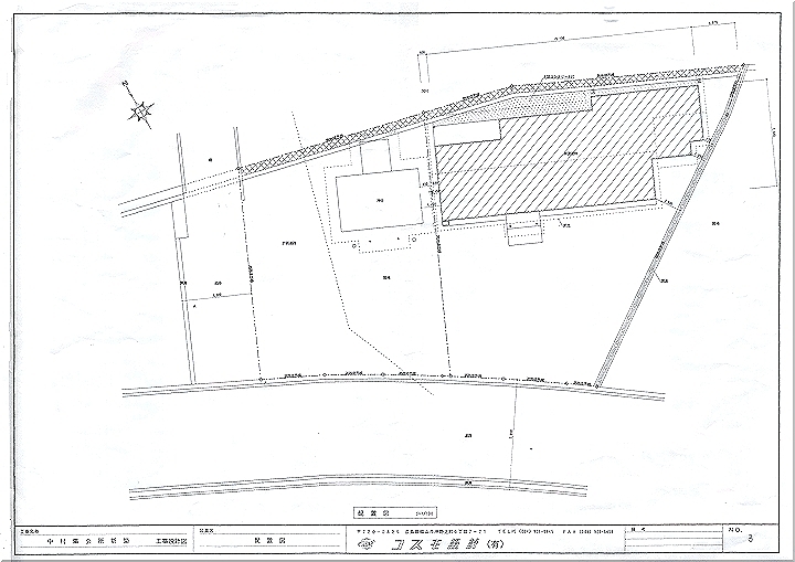
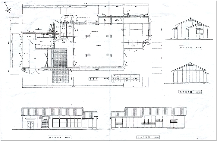
…“Ϋ’¬’†‘Ί@W‰οκV’zHŽ–E‹gœAΌ”φ_ŽΠˆΪ“]HŽ–@<3/3>

© –ί‚ι@@Contents‚Ι–ί‚ι@@ƒgƒbƒvƒy[ƒW‚Ι–ί‚ι